| 
					
					
					 tuanailing 
					
				 精細出真功 
					級別: 工控俠客   | 
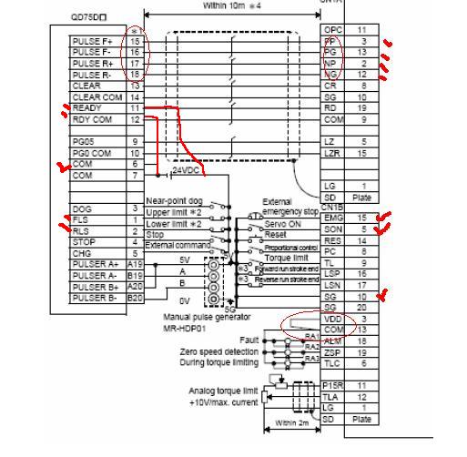
						描述:紅色為接線 圖片:   請問我只做 JOG點動測試,其他不做。接好線,只能驅動MR-J2S-20A,10A行,但是接到40A就不行了,點動電機,伺服都沒放映。 我接線是 F+ 接 伺服CN1A的 3腳 PP F- 接 伺服 CN1A的13腳 PG R+ 接 伺服CN1A的2腳 NP R- 接伺服CN1A的 12腳NG QD75D1定位模塊的 READY 和 RDY COM 給了個24V。 伺服CN1B 是 5 servo on 短接 10 sg ,15 接 10 。 3和13短接 我估計是輸出脈沖電流太小驅動不了,我應該是哪里內部電源沒短接,,,,,,求大蝦解答。哎郁悶啊 | |
|---|---|---|
| 
 | 
| 
					
					
					 281979349lay 
					
				 學習學習 
					級別: 論壇先鋒   | 樓主看你的接線應該沒有問題 [ 此帖被281979349lay在2011-04-22 10:43重新編輯 ] | 
|---|---|
|  | 
| 
					
					
					 tuanailing 
					
				 精細出真功 
					級別: 工控俠客   | 
 我有 MR-J2S-40A 的伺服,和伺服電機。 但是 驅動不了。 如果我接 MR-J2S-20A的伺服 和電機,就可以,。。。。無解啊!!! 大蝦請繼續跟帖幫幫我 | |
|---|---|---|
| 
 | 
| 
					
					
					 417369797 
					
				 人活著不能被思想不純的人影響到做回自己最重要。 
					級別: 略有小成   | 我剛做過qd75p1的后天我發個圖面給你 樓主留言:熱心助人 朋友,可以給下圖解嗎?這幾天一直弄不好 | 
|---|---|
|  | 
| 
					
					
					 liufuyao1234 
					
				 
					級別: 略有小成   | 將伺服的CN1B 16 LSP 17 LSN 和10 SG短接 或在參數里設置不使用。 | 
|---|---|
|  | 
| 
					
					
					 tuanailing 
					
				 精細出真功 
					級別: 工控俠客   | 7樓你說 短接左右極限指示燈,這樣可以加大驅動效果嗎? 40會檢測這2個鏈接,20A以下就不檢測嗎? | |
|---|---|---|
| 
 |